$5

Submission Drawing Template (3 Marla to 2 Kanal) - AutoCAD File

Buy this

Submission Drawing Template (3 Marla to 2 Kanal) - AutoCAD File

$5

Product Description

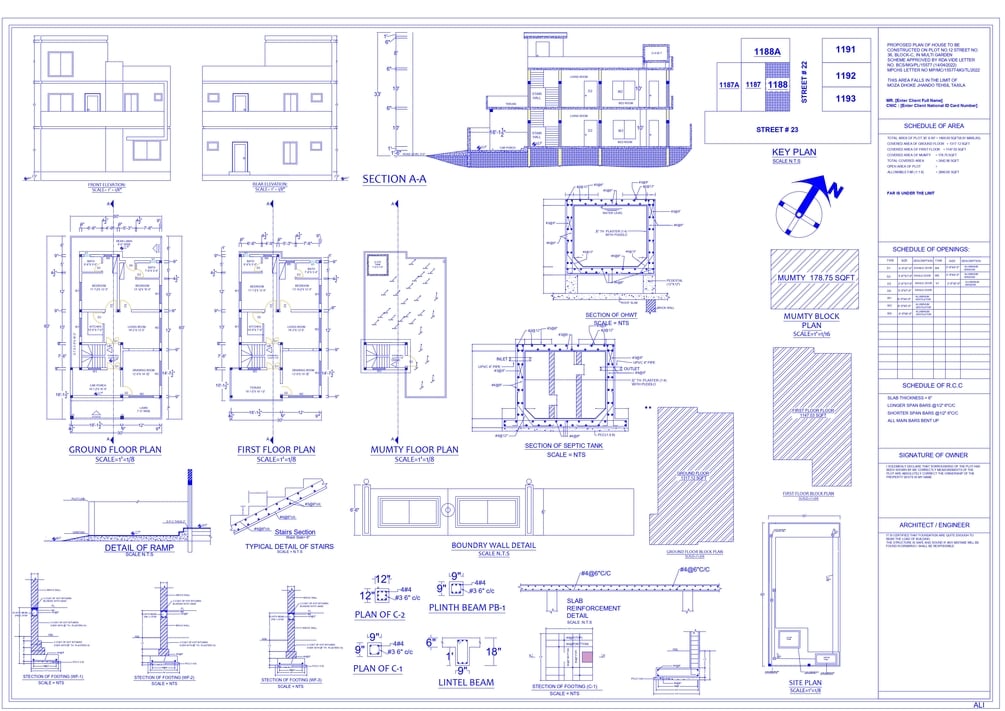
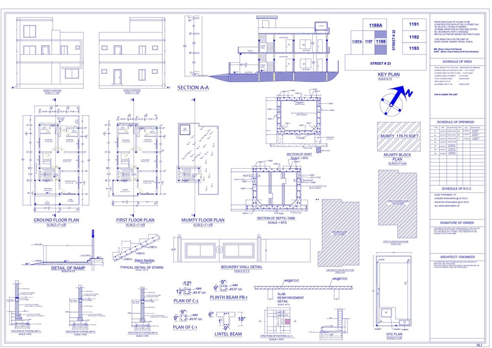
This Submission Drawing Template is a comprehensive and ready-to-use solution designed for professionals in the architectural and engineering fields. It enables the quick creation of professional submission drawings for residential and commercial projects, saving time and ensuring high-quality results.

The template is specifically built for projects ranging from 3 Marla to 2 Kanal and beyond, making it versatile and adaptable for a wide range of plot sizes. The user-friendly structure requires minimal effort — simply place your drawings in the pre-defined columns, and your submission file will be ready for print in standard blueprint settings.


How the Template Works

The template is structured into a series of clearly defined columns, each dedicated to specific components of a submission drawing. These include:

  1. Title Block Section:
    • Pre-designed title block with space to include project details such as the project name, client name, date, sheet number, and other essential information.
  2. House Layout or Drawing Plan:
    • Space provided to insert the floor plans for different levels of the building (e.g., ground floor, first floor).
    • Simply paste your existing AutoCAD floor plans into this section without additional adjustments.
  3. Front, Side, and Rear Elevations:
    • Columns for inserting pre-designed elevations (front, side, and rear views) of the project.
    • Ideal for showcasing the external appearance of the building.
  4. Site Plan:
    • A dedicated column to include the project’s site plan showing the building’s position within the plot and surroundings.
  5. Sections (Cross-Section and Longitudinal Section):
    • Ready-made columns for placing building sections, helping display the internal structure and heights.
  6. Key Plans and Column Layout:
    • Specific spaces for including key plans (overall view of the site) and the column layouts for structural clarity.
  7. Details and Specifications:
    • Space to insert any required detailed views, materials, specifications, or other project-specific notes.
  8. Color Coding:
    • Red Areas (Changeable): Components like the drawings, plans, and sections that vary for every project.
    • Green Areas (Constant): Settings, title blocks, and other standard elements that remain the same for every submission.



Key Features

  1. Fully Editable & Customizable:
    • The template is provided in AutoCAD DWG format, making it 100% editable to suit your project requirements.
  2. Pre-Configured Settings:
    • All blueprint settings such as line weights, colors, layers, and plot styles are pre-defined.
    • Blue color settings ensure the drawings meet standard submission requirements.
  3. Time-Saving Solution:
    • Eliminate the hassle of designing submission layouts from scratch.
    • Place your drawings in the relevant columns, and the submission sheet will be ready for printing.
  4. Professional Results:
    • Ensures consistency and a professional appearance for every submission drawing.
    • Suitable for both residential and commercial projects.
  5. Versatile for Multiple Plot Sizes:
    • Can be reused for projects of varying sizes: 3 Marla, 4 Marla, 5 Marla, 6 Marla, 7 Marla, 8 Marla, 9 Marla, 10 Marla, 1 Kanal, and 2 Kanal.
  6. Quick Printing:
    • Once the drawing is placed, the submission file can be easily printed in standard blueprint format without any further adjustments.



Who Is This Template For?

  • Architects: For fast and professional submission drawing preparation.
  • Draftsmen: To save time in creating layouts and blueprints.
  • Civil Engineers: For structural clarity and submission-ready results.
  • Architecture Students: To practice submission drawings for assignments and real projects.

What’s Included?

  • Editable AutoCAD (DWG) File for Submission Drawings.
  • Pre-Defined Columns for each drawing component.
  • Pre-Configured Blueprint Layout Settings (line weights, color schemes, and layers).
  • Reusable Design: Suitable for multiple project sizes without rebuilding the layout.

How This Helps You:

  1. Saves Time and Effort:
    • Instead of designing submission formats from scratch, you only need to insert your project drawings.
  2. Ensures Accuracy:
    • Standardized layout reduces errors and inconsistencies in submission files.
  3. Meets Professional Standards:
    • The template adheres to blueprint standards with pre-set blue color outputs.
  4. Cost-Effective:
    • Reusable for multiple projects and sizes, offering excellent value for money.



Conclusion:

This Submission Drawing Template is a must-have for architects, draftsmen, and engineers. It simplifies the submission drawing process, providing a fast, professional, and efficient solution for projects ranging from 3 Marla to 2 Kanal. Just insert your drawings, print, and deliver professional results every time!

Buy this

AutoCAD Submission Drawing Templates for 3 Marla to 2 Kanal projects. Pre-configured Blueprint Settings for instant use. Fully editable and customizable DWG files to fit your specific needs. Suitable for residential and commercial projects with minimal adjustments. Save time and effort with ready-to-use professional templates.

Size
1.54 MB
Powered by